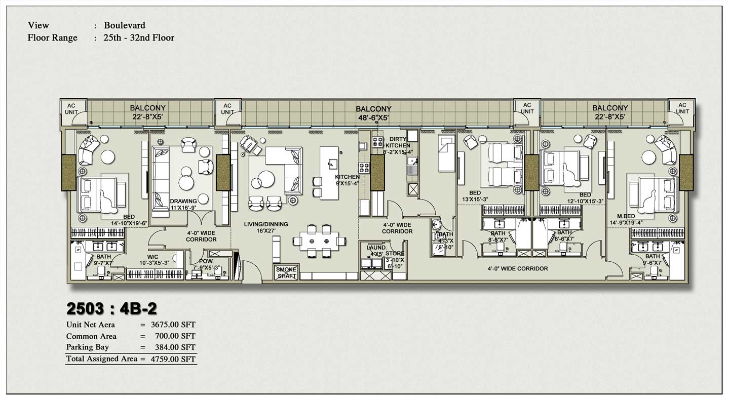
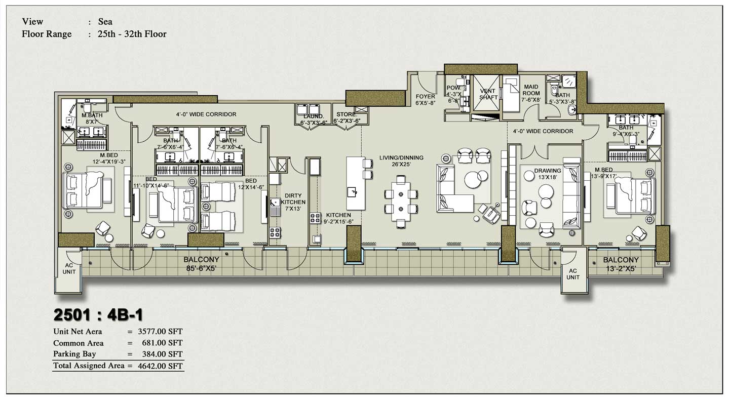
4 Bedroom

H1 Tower 4-Bedroom Floor Plan Layout 1
H1 Tower 4-Bedroom Floor Plan Layout 2

Follow Us